Villa singola in vendita

Roverbella, Via Solferino e San Martino
€ 280.000
7 locali 7 locali
200 Mq 200 Mq
2 bagni 2 bagni

Villa singola in vendita

Roverbella, Via Solferino e San Martino

Descrizione annuncio

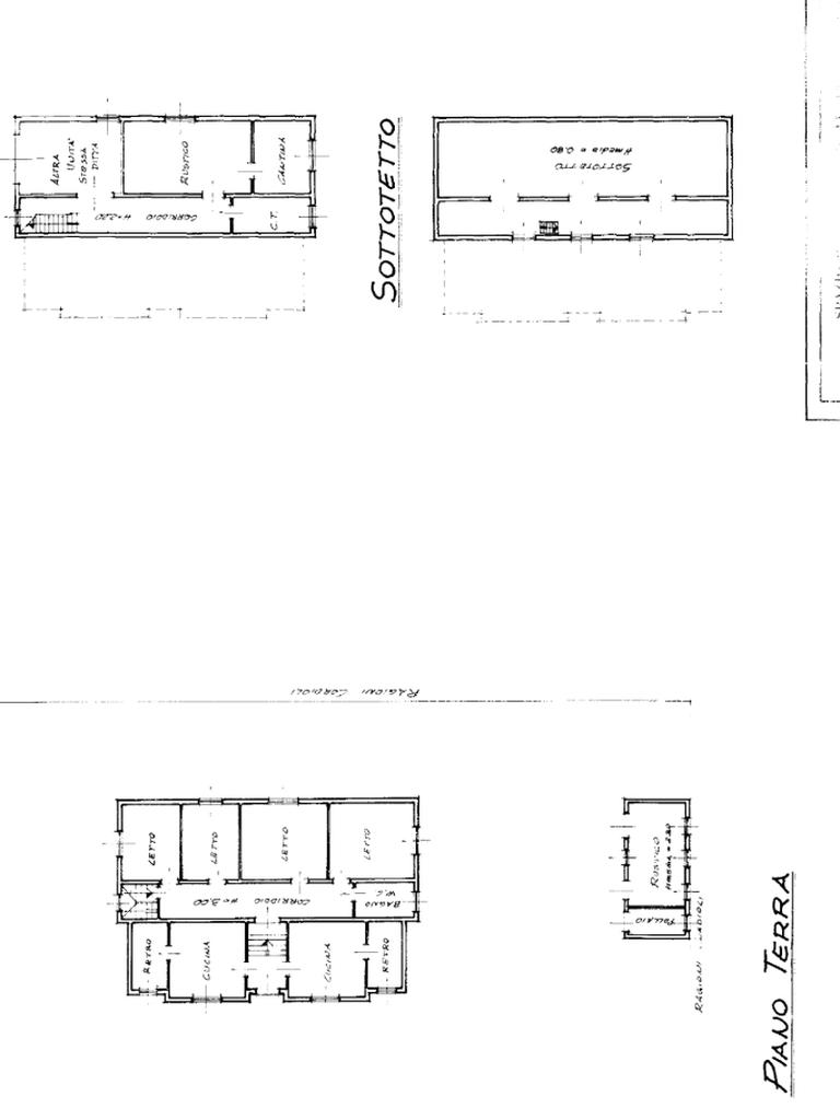
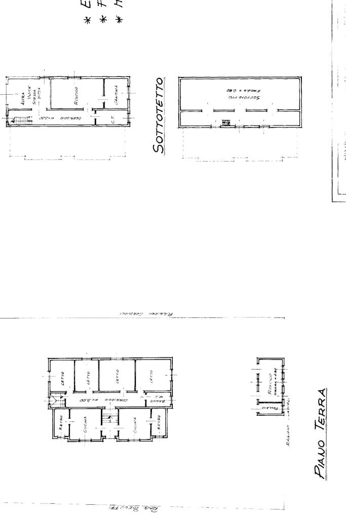
BELVEDERE - Proponiamo villa singola con giardino, box auto di proprietà e deposito di pertinenza.

L'immobile si sviluppa su più livelli:

- Al piano terra troviamo l'ingresso, un'ampia cucina abitabile e il soggiorno con una seconda cucina, che, eventualmente, può diventare uno spazio unico.

- Al piano mezzato abbiamo la zona notte composta da due ampie camere matrimoniali, un bagno finestrato con la doccia e due altre camerette, una delle quali all'occorenza può essere sfruttata come zona studio.

- Al piano semi-interrato troviamo la taverna con una zona cantina, un secondo bagno e il box auto al quale si accede tramite lo scivolo esterno.

Completano la proprietà un rustico esterno con altri due posti auto coperti e l'ampio giardino privato di circa 1300 mq, spazio perfetto per momenti di convivialità nei giorni estivi e di primavera in famiglia o con amici.

La casa è dotato di impianto di riscaldamento a termosifoni e impianto di condizionamento ed è stata oggetto di alcuni interventi di ristrutturazione parziale negli anni, ultimo dei quali la tinteggiatura esterna e interna di tutto l'immobile.

L'immobile è collocato a Belvedere in un contesto tranquillo ma comodo a tutti i principali servizi che offre la vicinanza al confine veneto e a Roverbella.

Per qualsiasi informazione o chiarimento e per visionare senza impegno questa soluzione, non esitate a contattarci! Ogni agenzia ha un proprio titolare ed e' autonoma - Le presenti informazioni non costituiscono elemento contrattuale e potrebbero, in buona fede, contenere errori o omissioni.

Mostra tutto

Nelle vicinanze

Trasporto pubblico Trasporto pubblico
Roverbella
Roverbella
2,8 Km
Trasporto pubblico
130 m
Scuole Scuole
Scuole medie
460 m
Scuole
600 m
Farmacia Farmacia
Farmacia
200 m
Supermercati Supermercati
Super A&O
780 m
Panificio Alimentari Nobis
780 m
Negozi Negozi
Panificio Spagnoli
250 m
Bar Bar
Verdi cafè
600 m
Bar Serafino
2,7 Km
Ristoranti Ristoranti
Ristorante all'Ancora
150 m
Toffoli
350 m
Osteria al canton
390 m
Pizzeria Stella
490 m
Pizzeria Trattoria da Giorgio
580 m
Mostra tutto

Caratteristiche

Rif.:
61178920
Piano:
Terra con giardino di 2
Totale piani:
2
Box:
1
Posti auto:
2
Camere da letto:
4
Mostra tutto
Prezzo Prezzo
€ 280.000
Rata mutuo Rata mutuo
€ 1.327 / mese
Spese annue Spese annue
€ 0
Proponi il tuo prezzoProponi il tuo prezzo
Immobile valutato con T·Valuta

Classe Energetica

G
G
G
G
G
G
G
G
G
EP globale non rinnovabile:
437.89 kW h/m² anno
EP globale rinnovabile:
437.89 kW h/m² anno
EP invernale del fabbricato:
EP estiva del fabbricato:
Anno di costruzione:
1970
Riscaldamento:
Autonomo
Tipo impianto:
A radiatori
Tipo alimentazione:
Metano

Ti interessa visionare l'immobile?

Fissa un appuntamento  Fissa un appuntamento

Richiedi informazioni

Clicca su Leggi per aprire l'informativa
* Questi campi sono obbligatori

Calcola il tuo mutuo

Semplice e senza impegno
Anticipo

( % )
Mutuo

( % )

pochi semplici passi

inserisci i tuoi dati
Questionario completato
Grazie per aver richiesto un appuntamento senza impegno con un nostro Consulente del Credito e Assicurativo.

Hai inserito correttamente tutti i dati necessari e a breve riceverai una e-mail con un link da convalidare per inviare i tuoi dati.
Affiliato
Oikos Srl
Via Unione Europea, 22 46045 Marmirolo (MN)

Il nostro staff


  • Oscar Zini
    Affiliato

  • Emanuele Borciani
    Affiliato

  • Maddalena Simonazzi
    Coordinatrice

  • Alex Mazzola
    Collaboratore
Via Unione Europea, 22 46045 Marmirolo (MN)
Zona: Marmirolo - Roverbella
Mostra su mappa
Orari: lunedì-venerdì dalle 09.00-13.00 e 14.30-19.30;sabato 09.00-13.00 .domenica chiuso
Affiliato
Oikos Srl
Via Unione Europea, 22 46045 Marmirolo (MN)

2026 Tecnocasa Franchising S.p.A. - P. IVA 08365160152 - Via Monte Bianco 60/A 20089 Rozzano (MI). Ogni agenzia ha un proprio titolare ed è autonoma. Privacy policy | Policy utilizzo | Cookie policy