Bifamiliare in vendita

Roverbella, Via Solferino
€ 165.000
Prezzo aggiornato
10 locali 10 locali
260 Mq 260 Mq
3 bagni 3 bagni

Bifamiliare in vendita

Roverbella, Via Solferino

Descrizione annuncio

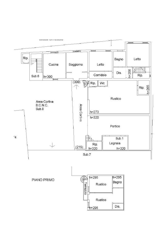
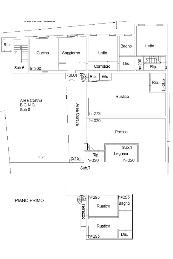
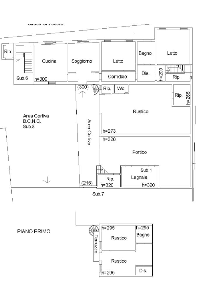
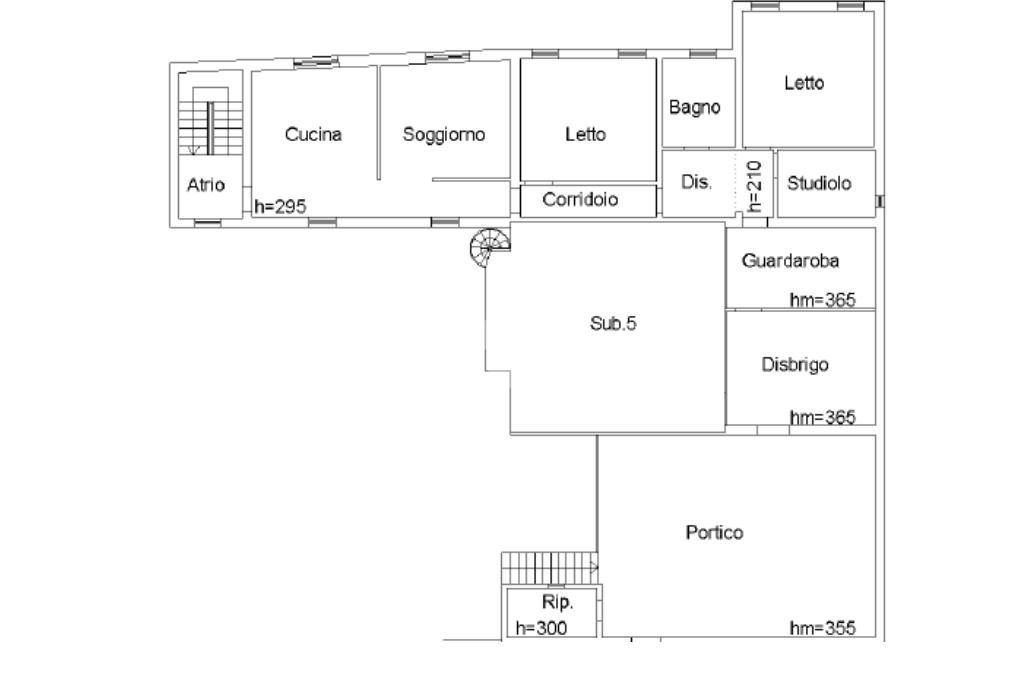
MALAVICINA DI ROVERBELLA- Casa indipendente con area cortiva e due appartamenti.

L'immobile è composto da due unità abitative, una abitabile da subito e una da ristrutturare.

Partendo dal piano terra abbiamo il primo dei due appartamenti: ha una superfcie di circa 120 mq ed è composto da zona giorno, cucina separata, due camere matrimoniali, bagno e ripostiglio. Troviamo qua anche una cantina interrata di mq 20 circa.

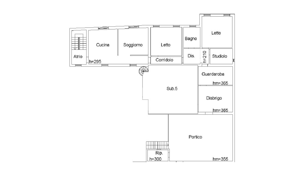
Al piano primo abbiamo invece un appartamento con cucina/soggiorno, due matrimoniali, bagno e altri due locali attualmente al grezzo e un sottotetto di 25 mq. Questa unità è in buone condizioni generali e abitabile da subito.

Al primi livello è presente anche un piccolo appartamento bilocale indipendente che necessità di una ristrutturazione completa.

All'esterno del corpo principale, sul lato est dell'immobile, troviamo auna depandance. Questo era un locale commerciale che attualmente è stato adibito a taverna/area giochi.

E' presente inoltre un'ampia autorimessa di mq 80 circa adiacente al portico /legnaia. L'immobile è perfetto per famiglie di grandi dimensioni o per più nuclei familiari distinti, è collocato nella zona centrale della frazione di Malavicina.

Per qualsiasi informazione o chiarimento e per visionare senza impegno questa soluzione, non esitate a contattarci!

Ogni agenzia ha un proprio titolare ed e' autonoma - Le presenti informazioni non costituiscono elemento contrattuale e potrebbero involontariamente e in buona fede contenere errori o omissioni.

Mostra tutto

Nelle vicinanze

Trasporto pubblico Trasporto pubblico
Roverbella
Roverbella
2,8 Km
Trasporto pubblico
130 m
Scuole Scuole
Scuole medie
460 m
Scuole
600 m
Farmacia Farmacia
Farmacia
200 m
Supermercati Supermercati
Super A&O
780 m
Panificio Alimentari Nobis
780 m
Negozi Negozi
Panificio Spagnoli
250 m
Bar Bar
Verdi cafè
600 m
Bar Serafino
2,7 Km
Ristoranti Ristoranti
Ristorante all'Ancora
150 m
Toffoli
350 m
Osteria al canton
390 m
Pizzeria Stella
490 m
Pizzeria Trattoria da Giorgio
580 m
Mostra tutto

Caratteristiche

Rif.:
61118880
Piano:
2 di 2 (Piano terra con giardino)
Box:
1
Posti auto:
2
Camere da letto:
4
Arredamento:
Assente
Mostra tutto
Prezzo Prezzo
€ 165.000
Rata mutuo Rata mutuo
€ 782 / mese
Spese annue Spese annue
€ 0
Proponi il tuo prezzoProponi il tuo prezzo
Immobile valutato con T·Valuta

Classe Energetica

G
G
G
G
G
G
G
G
G
EP globale non rinnovabile:
556.78 kW h/m² anno
EP globale rinnovabile:
676.90 kW h/m² anno
Anno di costruzione:
1960
Riscaldamento:
Autonomo
Tipo impianto:
A radiatori
Tipo alimentazione:
Metano

Prezzo ridotto di €1 (9%%)

Ti interessa visionare l'immobile?

Fissa un appuntamento  Fissa un appuntamento

Richiedi informazioni

Clicca su Leggi per aprire l'informativa
* Questi campi sono obbligatori

Calcola il tuo mutuo

Semplice e senza impegno
Anticipo

( % )
Mutuo

( % )

pochi semplici passi

inserisci i tuoi dati
Questionario completato
Grazie per aver richiesto un appuntamento senza impegno con un nostro Consulente del Credito e Assicurativo.

Hai inserito correttamente tutti i dati necessari e a breve riceverai una e-mail con un link da convalidare per inviare i tuoi dati.
Affiliato
Oikos Srl
Via Unione Europea, 22 46045 Marmirolo (MN)

Il nostro staff


  • Oscar Zini
    Affiliato

  • Emanuele Borciani
    Affiliato

  • Maddalena Simonazzi
    Coordinatrice

  • Alex Mazzola
    Collaboratore
Via Unione Europea, 22 46045 Marmirolo (MN)
Zona: Marmirolo - Roverbella
Mostra su mappa
Orari: lunedì-venerdì dalle 09.00-13.00 e 14.30-19.30;sabato 09.00-13.00 .domenica chiuso
Affiliato
Oikos Srl
Via Unione Europea, 22 46045 Marmirolo (MN)

2026 Tecnocasa Franchising S.p.A. - P. IVA 08365160152 - Via Monte Bianco 60/A 20089 Rozzano (MI). Ogni agenzia ha un proprio titolare ed è autonoma. Privacy policy | Policy utilizzo | Cookie policy