Multilocale in vendita

Porto Mantovano, Via Parigi - Malpensata
€ 100.000
1 locale 1 locale
100 Mq 100 Mq
1 bagno 1 bagno

Multilocale in vendita

Porto Mantovano, Via Parigi - Malpensata

Descrizione annuncio

Locato fino al 2029 quindi ideale al momento come forma di investimento sicura!

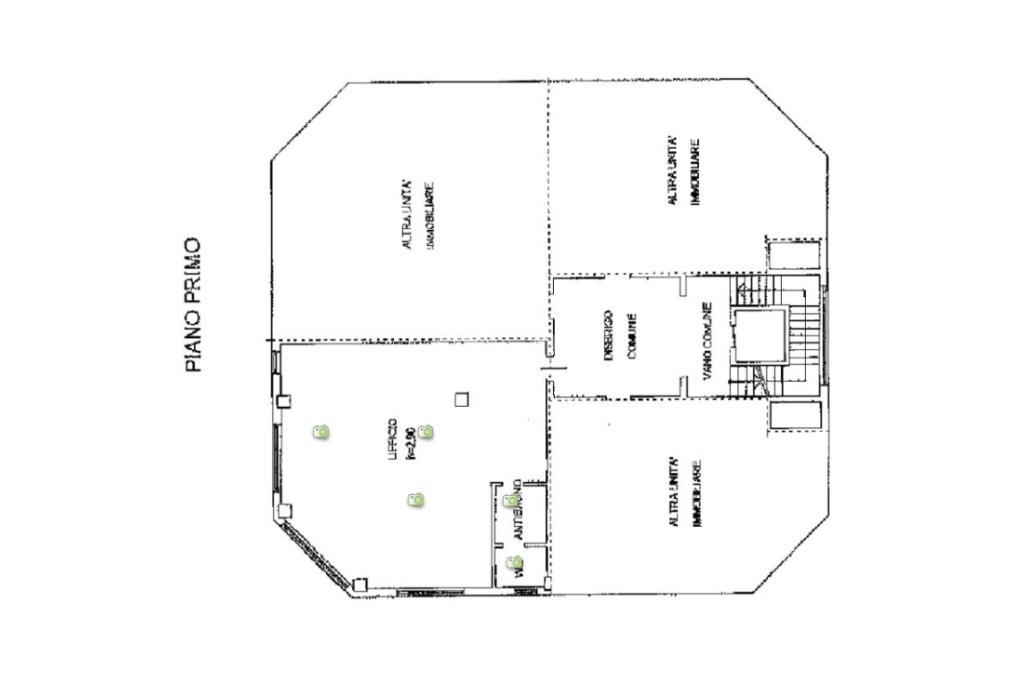
Ufficio di quasi 100 mq posto al primo piano di una palazzina del 2004 ad uso uffici tra Marmirolo e Porto Mantovano. L'immobile si caratterizza come un ampio open space, ingresso, antibagno e bagno a norma per disabili mentre al piano terra è presente un posto auto privato.

Ampio parcheggio pubblico disponibile per dipendenti e clienti!

L'immobile si presenta in ottimo stato, non ha bisogno di alcun tipo di manutenzione.

Per qualsiasi informazione o chiarimento e per visionare senza impegno questa soluzione, non esitate a contattarci!

Ogni agenzia ha un proprio titolare ed e' autonoma - Le presenti informazioni non costituiscono elemento contrattuale e potrebbero involontariamente e in buona fede contenere errori o omissioni!

Mostra tutto

Nelle vicinanze

Trasporto pubblico Trasporto pubblico
Sant’Antonio Mantovano
Sant’Antonio Mantovano
1,4 Km
Trasporto pubblico
1,0 Km
S. Antonio FS
S. Antonio FS
1,4 Km
Ricariche auto elettriche Ricariche auto elettriche
Evway Porto Mantovano Resistenza
2,3 Km
Scuole Scuole
Scuole
1,4 Km
Scuole Medie Monteverdi
1,5 Km
Farmacia Farmacia
Gamba
1,7 Km
Farmacia
2,1 Km
Farmacia San Raffaele
2,4 Km
Supermercati Supermercati
Albero
1,6 Km
Lidl
1,7 Km
Conad
1,7 Km
Famila
2,2 Km
Supermercati
2,5 Km
Bar Bar
Bar Camatti
1,6 Km
Ristoranti Ristoranti
Piedigrotta
1,4 Km
Sakura
1,6 Km
Ristorante Fuku
1,6 Km
La Rasdora
2,0 Km
Ristoranti
2,5 Km
Mostra tutto

Caratteristiche

Rif.:
61177086
Piano:
1 di 3 con ascensore (Piano medio)
Posti auto:
1
Arredamento:
Assente
Condizionamento:
Autonomo
Ascensore:
Mostra tutto
Prezzo Prezzo
€ 100.000
Rata mutuo Rata mutuo
€ 475 / mese
Spese annue Spese annue
€ 0
Proponi il tuo prezzoProponi il tuo prezzo
Immobile valutato con T·Valuta

Altre caratteristiche

Classe Energetica

D
D
D
D
D
D
D
D
D
EP globale non rinnovabile:
158.21 kW h/m² anno
EP globale rinnovabile:
158.21 kW h/m² anno
EP invernale del fabbricato:
EP estiva del fabbricato:
Anno di costruzione:
2004
Riscaldamento:
Autonomo
Tipo impianto:
A radiatori
Tipo alimentazione:
Metano

Ti interessa visionare l'immobile?

Fissa un appuntamento  Fissa un appuntamento

Richiedi informazioni

Clicca su Leggi per aprire l'informativa
* Questi campi sono obbligatori

Calcola il tuo mutuo

Semplice e senza impegno
Anticipo

( % )
Mutuo

( % )

pochi semplici passi

inserisci i tuoi dati
Questionario completato
Grazie per aver richiesto un appuntamento senza impegno con un nostro Consulente del Credito e Assicurativo.

Hai inserito correttamente tutti i dati necessari e a breve riceverai una e-mail con un link da convalidare per inviare i tuoi dati.
Affiliato
Oikos Srl
Via Unione Europea, 22 46045 Marmirolo (MN)

Il nostro staff


  • Oscar Zini
    Affiliato

  • Emanuele Borciani
    Affiliato

  • Maddalena Simonazzi
    Coordinatrice

  • Alex Mazzola
    Collaboratore
Via Unione Europea, 22 46045 Marmirolo (MN)
Zona: Marmirolo - Roverbella
Mostra su mappa
Orari: lunedì-venerdì dalle 09.00-13.00 e 14.30-19.30;sabato 09.00-13.00 .domenica chiuso
Affiliato
Oikos Srl
Via Unione Europea, 22 46045 Marmirolo (MN)

2026 Tecnocasa Franchising S.p.A. - P. IVA 08365160152 - Via Monte Bianco 60/A 20089 Rozzano (MI). Ogni agenzia ha un proprio titolare ed è autonoma. Privacy policy | Policy utilizzo | Cookie policy