Bifamiliare in vendita

Marmirolo, Via Unione Europea
€ 375.000
7 locali 7 locali
335 Mq 335 Mq
3 bagni 3 bagni

Bifamiliare in vendita

Marmirolo, Via Unione Europea

Descrizione annuncio

IDEALE PER GENITORI E FIGLI O FRATELLI E SORELLE CHE VOGLIONO VIVERE ACCANTO

DESCRIZIONE IMMOBILE

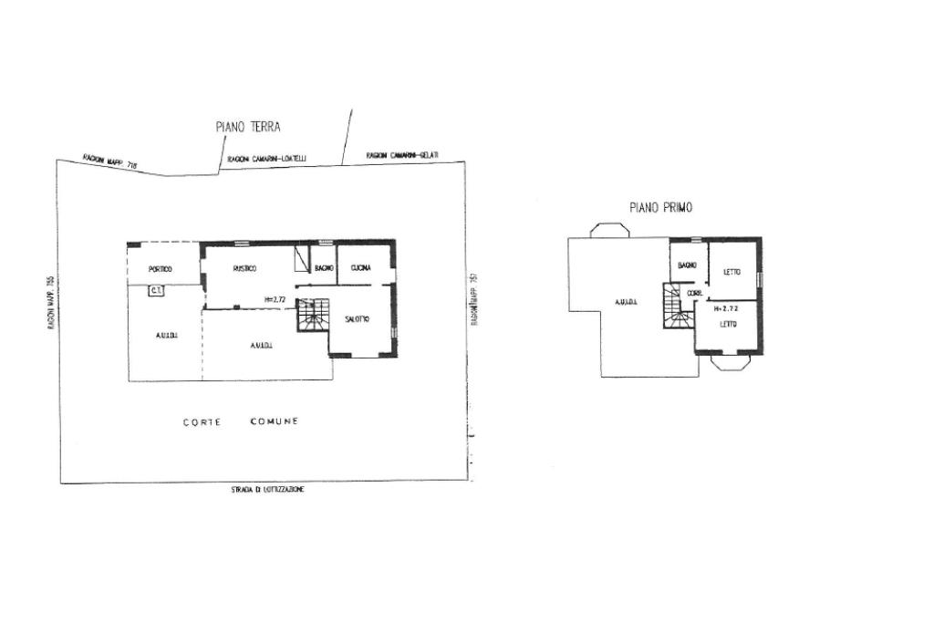
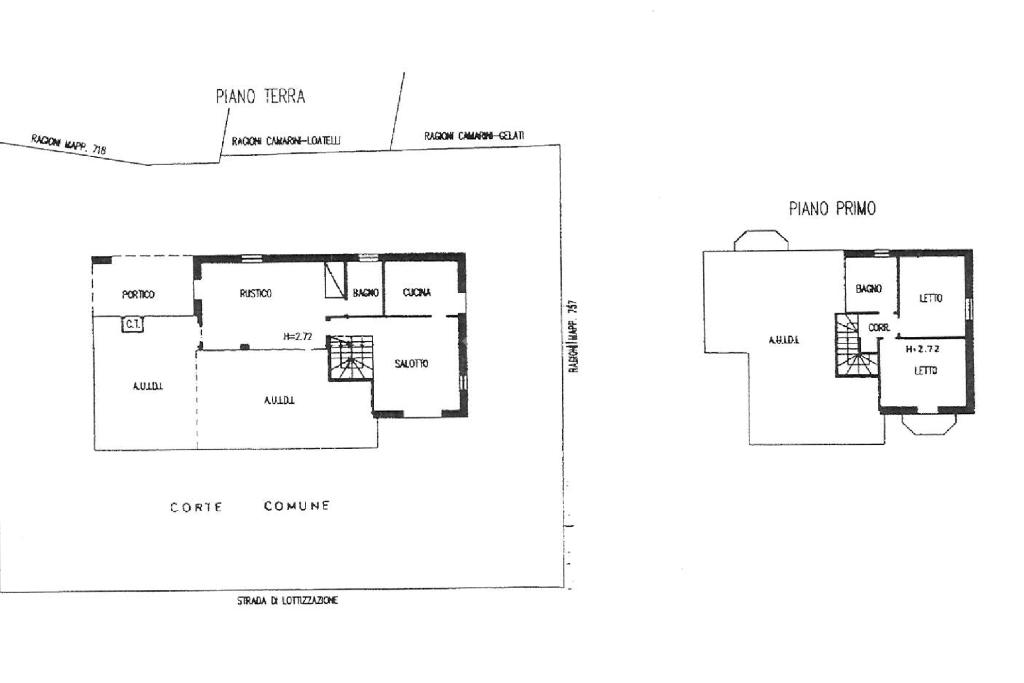
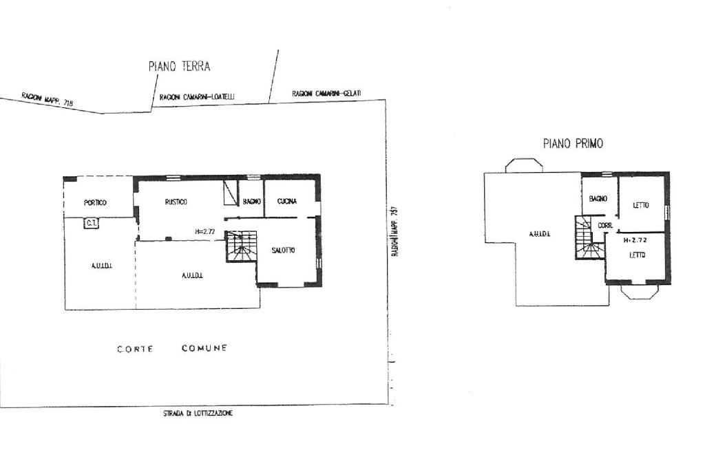
Villa singola divisa in due unità separate ma comunicanti, siluppate entrambe su due livelli e dotate di un autorimessa e ampio giardino attorno. La prima abitazione posta a sinistra si compone di zona giorno con cucina in open space (oggi non installata ma con attacchi pronti), scale e corridoio, bagno, una camera matrimoniale con balcone e una seconda molto grande dove può essere ricavata uno studio privato o una cabina armadio interna. La seconda abitazione sulla destra invece offre una originale taverna con camino e porticato da utilizzare per feste con amici, zona giorno con cucina a isola, bagno a piano terra e un secondo al primo piano, disimpegno e due camere da letto matrimoniali di cui una con balcone. Sul fianco, ma comunicante con la taverna, è disponibile un'autorimessa doppia con angolo lavanderia e l'abitazione è circondata da un ampio e curato giardino piantumato su quattro lati.

L'immobile si presente in ottimo stato e non richiede alcun lavoro nel breve e medio periodo, dispone di utenze acqua/luce/gas separate, climatizzatori vari e allarme.

POSIZIONE E CONTESTO

Questa soluzione si trova nella zona residenziale nuova di Marmirolo, vicinissima all'asilo, poste, supermercato e tutte le attrività del centro paese!

Per qualsiasi informazione o chiarimento e per visionare senza impegno questa soluzione, non esitate a contattarci!

Ogni agenzia ha un proprio titolare ed e' autonoma - Le presenti informazioni non costituiscono elemento contrattuale e potrebbero involontariamente e in buona fede contenere errori o omissioni!

Mostra tutto

Nelle vicinanze

Trasporto pubblico Trasporto pubblico
Trasporto pubblico
290 m
Ricariche auto elettriche Ricariche auto elettriche
Autofficina Balista Renato | Enel X
550 m
Supermercati Supermercati
Supermercati
930 m
Mostra tutto

Caratteristiche

Rif.:
61206280
Piano:
2 di 2 (Piano su più livelli)
Box:
1
Posti auto:
1
Balconi:
2
Camere da letto:
4
Mostra tutto
Prezzo Prezzo
€ 375.000
Rata mutuo Rata mutuo
€ 1.777 / mese
Spese annue Spese annue
€ 0
Proponi il tuo prezzoProponi il tuo prezzo
Immobile valutato con T·Valuta

Classe Energetica

G
G
G
G
G
G
G
G
G
EP globale non rinnovabile:
356.92 kW h/m² anno
EP globale rinnovabile:
356.92 kW h/m² anno
EP invernale del fabbricato:
EP estiva del fabbricato:
Anno di costruzione:
1998
Riscaldamento:
Autonomo
Tipo impianto:
A radiatori
Tipo alimentazione:
Metano

Ti interessa visionare l'immobile?

Fissa un appuntamento  Fissa un appuntamento

Richiedi informazioni

Clicca su Leggi per aprire l'informativa
* Questi campi sono obbligatori

Calcola il tuo mutuo

Semplice e senza impegno
Anticipo

( % )
Mutuo

( % )

pochi semplici passi

inserisci i tuoi dati
Questionario completato
Grazie per aver richiesto un appuntamento senza impegno con un nostro Consulente del Credito e Assicurativo.

Hai inserito correttamente tutti i dati necessari e a breve riceverai una e-mail con un link da convalidare per inviare i tuoi dati.
Affiliato
Oikos Srl
Via Unione Europea, 22 46045 Marmirolo (MN)

Il nostro staff


  • Oscar Zini
    Affiliato

  • Emanuele Borciani
    Affiliato

  • Maddalena Simonazzi
    Coordinatrice

  • Alex Mazzola
    Collaboratore
Via Unione Europea, 22 46045 Marmirolo (MN)
Zona: Marmirolo - Roverbella
Mostra su mappa
Orari: lunedì-venerdì dalle 09.00-13.00 e 14.30-19.30;sabato 09.00-13.00 .domenica chiuso
Affiliato
Oikos Srl
Via Unione Europea, 22 46045 Marmirolo (MN)

2026 Tecnocasa Franchising S.p.A. - P. IVA 08365160152 - Via Monte Bianco 60/A 20089 Rozzano (MI). Ogni agenzia ha un proprio titolare ed è autonoma. Privacy policy | Policy utilizzo | Cookie policy