Bilocale in vendita

Marmirolo, Via Unione Europea
€ 85.000
2 locali 2 locali
65 Mq 65 Mq
1 bagno 1 bagno

Bilocale in vendita

Marmirolo, Via Unione Europea

Descrizione annuncio

DESCRIZIONE IMMOBILE

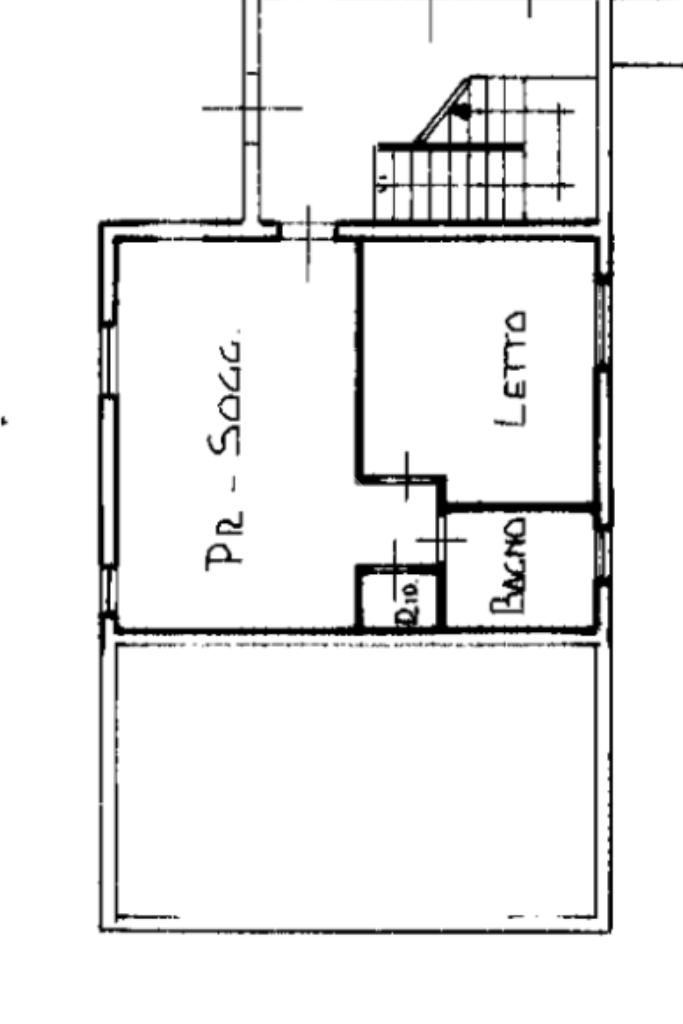
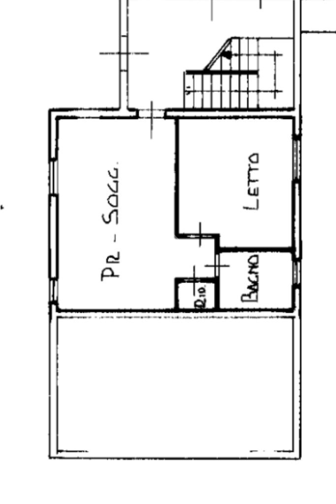
A piano terra, appartamento bilocale con ampia zona giorno e angolo cucina, camera matrimoniale, disimpegno, bagno e rispostiglio. Comodissimo il garage adiacente comunicante con angolo lavanderia! L'immobile si presenta in ottime condizioni, già tinteggiato e consegnato di cucina, non necessita alcun lavoro nel breve e medio periodo! Adatto per single, coppie o anziani per l'assenza di barriere architettoniche.

POSIZIONE E CONTESTO

Questa soluzione è perfetta per chi cerca la comodità del piano terra e la vicinanza alla piazza e tutti i servizi e comodità del paese, in un condominio con modeste spese condominiali.

Per qualsiasi informazione o chiarimento e per visionare senza impegno questa soluzione, non esitate a contattarci!

Ogni agenzia ha un proprio titolare ed e' autonoma - Le presenti informazioni non costituiscono elemento contrattuale e potrebbero involontariamente e in buona fede contenere errori od omissioni.

Mostra tutto

Nelle vicinanze

Trasporto pubblico Trasporto pubblico
Trasporto pubblico
290 m
Ricariche auto elettriche Ricariche auto elettriche
Autofficina Balista Renato | Enel X
550 m
Supermercati Supermercati
Supermercati
930 m
Mostra tutto

Caratteristiche

Rif.:
61112884
Piano:
Terra di 3
Totale piani:
3
Box:
1
Posti auto:
1
Camere da letto:
1
Mostra tutto
Prezzo Prezzo
€ 85.000
Rata mutuo Rata mutuo
€ 390 / mese
Proponi il tuo prezzoProponi il tuo prezzo
Immobile valutato con T·Valuta

Classe Energetica

G
G
G
G
G
G
G
G
G
EP globale non rinnovabile:
370.22 kW h/m² anno
EP globale rinnovabile:
0.00 kW h/m² anno
EP invernale del fabbricato:
EP estiva del fabbricato:
Anno di costruzione:
1989
Riscaldamento:
Autonomo
Tipo impianto:
A radiatori
Tipo alimentazione:
Metano

Ti interessa visionare l'immobile?

Fissa un appuntamento  Fissa un appuntamento

Richiedi informazioni

* Questi campi sono obbligatori

Calcola il tuo mutuo

Semplice e senza impegno
Anticipo

( % )
Mutuo

( % )

pochi semplici passi

inserisci i tuoi dati
Questionario completato
Grazie per aver richiesto un appuntamento senza impegno con un nostro Consulente del Credito e Assicurativo.

Hai inserito correttamente tutti i dati necessari e a breve riceverai una e-mail con un link da convalidare per inviare i tuoi dati.
Affiliato
Oikos Srl
Via Unione Europea, 22 46045 Marmirolo (MN)

Il nostro staff


  • Oscar Zini
    Affiliato

  • Emanuele Borciani
    Affiliato

  • Maddalena Simonazzi
    Coordinatrice

  • Alex Mazzola
    Collaboratore

  • Jonatan Savazzi
    Collaboratore

  • Simone Zito
    Collaboratore
Via Unione Europea, 22 46045 Marmirolo (MN)
Zona: Marmirolo - Roverbella
Mostra su mappa
Orari: lunedì-venerdì dalle 09.00-13.00 e 14.30-19.30;sabato 09.00-13.00 .domenica chiuso
Affiliato
Oikos Srl
Via Unione Europea, 22 46045 Marmirolo (MN)

2025 Tecnocasa Franchising S.p.A. - P. IVA 08365160152 - Via Monte Bianco 60/A 20089 Rozzano (MI). Ogni agenzia ha un proprio titolare ed è autonoma. Privacy policy | Policy utilizzo | Cookie policy